| 房屋資料 |
| 案名 | 近南科園區,小新營,成功路53巷75號 | 案號 | 114明134129 |
| 地址 | 台南市善化區成功路53巷75號台南市善化區成功路53巷75號 |
|---|
| 最新交易狀態 | 待標中 | 售價 | 售2680萬售2144萬 |
| 房屋類型 | 透天 | 總登記坪數 | 57.9 坪 |
| 格局 | | 屋齡 | 19年 |
|---|
| 每坪單價 | 37.03萬/坪 | 公設比 | |
|---|
| 車位 | 庭院車庫 | 座向 | 朝東北 |
|---|
| 無障礙環境 | | 法拍屋 | 本物件是法拍屋 拍次 : 2 開標日期 : 114/12/24
|
|---|
| 建物所在樓層 | 1~4/4 | 管理費 | |
|---|
| 管委會 | | 中庭 | |
| 電梯 | 沒有 | 是否為凶宅 | |
| 300公尺內嫌惡設施 | | 面前道路 | |
| 面寬 | | 縱深 | |
| 邊間 | | 房屋銷售來源 | 不動產經紀人/專業仲介 |
|---|
| 房屋特色 | 貸款才是決勝點,提供預審,保證核貸 千萬經理人,接任台灣不動產拍賣協會監事
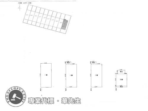
◆門牌:成功路53巷75號 ◆主建物:54.05坪 ◆附屬:3.85坪 ◆土地:41.16坪 ◆土地現值【住宅區■114年公告現值:33600元/㎡】 ◆房屋用途:鋼筋混凝土造/住家用 ◆房屋樓層:所在1~4樓/總樓層4樓 ◆房屋朝向:朝東北
◎投資房地產,就是要透天 【法院筆錄】●點交情形→如備註● 1‧查封時,債務人在場稱:系爭建物係由債務人自住使用,惟本件不動產實際現狀及使用情形,投標人仍應自行查證,拍定後依債務人占有現況點交,但如有其他依法不得點交之情形,本院得不點交。 2‧拍賣之建物,其中有增建部份,係未辦保存登記之建物,拍定後可否辦理第一次建物登記,由拍定人自行向地政機關洽辦,與本院權責無關。如經主關機關認屬違章建築,拍定人應自行承擔拆除風險,亦不得以建物面積之增減或位置偏移請求增減價金或撤銷拍定,請應買人特別注意。 3‧本件第一拍價格參考113年度司執字第5063號案件第3次拍賣價格核定底價。 4‧依強制執行法第113條準用同法第69條之規定,法院拍賣,不負物之瑕疵擔保責任,拍定人不得以物之瑕疵請求撤銷拍定。 5‧拍賣之土地,如拍定之價格低於所核定之土地增值稅者,依土地稅法第51條第2項規定,拍定人應代為繳足其差額,本院始能發給權利移轉證明書,應買人應自行注意。《給付票款》
※無人買受時,酌減20%估算,概以執行單位公告為準 第一拍12/03底標價:2680萬 第二拍12/24底標價:2144萬 第三拍未定底標價:1716萬
王牌經理人,十六年以上法拍經驗豐富 眼光最精準,代標多筆億元以上的案件 在地最深耕,資源豐富廣闊人脈執行力 協助自用者,找到理想實用的房屋圓夢 幫助投資人,創造物件最高投資報酬率 最專業團隊,讓您案件事半功倍又圓滿
【在地深耕,眼光精準,人脈廣闊】 ■產權清楚、案件評估、排除瑕疵事故 ■全程負責、快速交屋、拍後不被騷擾 ■代墊利率6.3%、額度8成、手續費0.3% ■房貸利率2.65%、免排隊、立即撥款 ■法拍屋代墊款、需要資金、歡迎找我
104法拍網|透明房訊|全國最大 ◆規模最大◈歷史最久◆ 全國七處分公司,300多位編制人員 成立於1986年,全國16家法院駐點 ◆專業最強◈全國唯一◆ 全國超過1800場授課專業講習 100坪倉庫,造冊拍賣遺留物 ◆正派經營◈開立發票◆ 營業員(99)登159091號 經紀人(96)年北市經證字01243號 一零四法拍網(股),統編28306523
能看屋的,網頁會註明。一般法拍屋查封之後無法入內參觀,可依據建物平面圖推斷室內格局是否方正,或參考樓上樓下鄰居房屋。(預約看屋留言,一律不回)
|
|---|
| 坪數說明 |
| 建物登記總坪數 | | 土地登記總坪數 | 41.16 |
|---|
| 主建物坪數 | 54.05 | 停車位坪數 | |
|---|
| 附屬建物坪數 | 3.85 | 公共設施坪數 | |
|---|
| 增建坪數 | |
|---|
| 周邊環境 |
| 生活機能 | | 鄰近交通 | |
|---|
| 鄰近地標 | | 公園綠地 | |
|---|
| 鄰近學區 | | 捷運站 | |
|---|
| 房屋聯絡人資訊 |
| 聯絡人姓名 | 經理:華國峰 / 特助:李佩玟 (煩請告知聯絡人,您是在889房屋網看到這則廣告,真摯感恩您的幫忙) |
|---|
| 手機 |  0916-000-104(經理:華國峰 / 特助:李佩玟) | 電子信箱 | foreclosure104@yahoo.com |
|---|
| Skype通話 | | Line加入好友 |
|
|---|
| 所屬公司名稱 | 透明房訊 ,104法拍網(股) |
|---|
| 公司電話 | (02)8262-5555 / (03)337-5555 | 公司傳真 | 全國直營,法拍專家 |
|---|
| 公司地址 | 新北市土城區金城路二段396號11樓 / 桃園市桃園區莊敬路一段346號4樓 |
|---|
| 網 址 | http://www.104法拍屋.tw |
|---|