台南市永康透天
首頁
│
台南房屋
│
台南房子
│
申請房仲網站
台南房屋出售
台南房屋出租
台南土地出售
台南土地出租
台南法拍屋
台南法拍地
台南房仲
台南房地產委託
關鍵字
現在位置:
首頁
>
台南房屋出售
>
永康房屋出售
>
台南市永康透天-台南市永康區中山南路
最後更新:37分鐘內
檢舉不實
│
列印
│
物件留言
|
觀看地圖
台南市永康透天
台南市永康透天
房屋資料
案名
近東橋/砲校~20米路金賺店,售2680萬
案號
3357
地址
台南市永康區中山南路
台南市永康區中山南路
最新交易狀態
帶看中
售價
售
2680萬
房屋類型
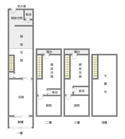
透天_店面
總登記坪數
38.32 坪
格局
2房
,4廳,3衛,2陽台,1廚房
屋齡
50年
每坪單價
69.94萬/坪
公設比
車位
騎樓
座向
無障礙環境
沒有
法拍屋
本物件不是法拍屋
建物所在樓層
共3樓
管理費
管委會
沒有
中庭
沒有
電梯
沒有
是否為凶宅
不是
300公尺內嫌惡設施
面前道路
20米
面寬
縱深
邊間
房屋銷售來源
不動產經紀人/專業仲介
房屋特色
近東橋~砲校~中山南路
1.正20米路中山南路上,砲校正對面,醒目店面。
2.大地坪,一樓店面,二樓以上可規劃住家,使用空間大。
3.周遭環境優越,永康創意園區、台南總圖書館、萬坪公園近在咫尺。
4.坐擁中山南路商圈、東橋商圈、復國商圈,地段優勢無可比擬。
5.周邊眾多商家林立,帶來繁華活力,文武百市皆通。
6.2025年底砲校即將遷移完畢,商機無限。
7.快來把握機會,成就夢想的經營據點!
坪數說明
建物登記總坪數
38.32
土地登記總坪數
33.15
主建物坪數
停車位坪數
附屬建物坪數
公共設施坪數
增建坪數
周邊環境
生活機能
鄰近交通
鄰近地標
公園綠地
鄰近學區
捷運站
房屋聯絡人資訊
聯絡人姓名
陳盈秀
(煩請告知聯絡人,您是在889房屋網看到這則廣告,真摯感恩您的幫忙)
手機
0928-010-990(陳盈秀)
電子信箱
Skype通話
Line加入好友
所屬公司名稱
誠昱不動產企業社(住商成大東興店)
公司電話
0928010990 (LINE)
公司傳真
公司地址
台南市永康區小北路30號
網 址
http://www.台南秀秀房仲網.tw
贊助商廣告
台南市永康透天
台南永康透天-1
台南永康透天-2
台南永康透天-3
台南永康透天-4
台南永康透天-5
台南永康透天-6
台南永康透天-7
台南永康透天-8
台南永康透天-9
台南永康透天-10
台南永康透天-11
台南永康透天-12
台南永康透天-13
台南永康透天-14
觀看地圖
到Google查看地圖
到Google查看街景
黃金熱銷物件
永康永康區南工街
透天_店面 / 2房
44.14 坪
售968萬
相似物件
東區東區小東路
透天_店面/2房
28.89 坪
售2480萬
永康龍中街
透天_店面/4房
70.18 坪
售2860萬
中西區中正路xx洽
透天_店面/7房
84.948 坪
售2780萬
中西區西門路二段
透天_店面/7房
95.545 坪
售2780萬
物件留言
請注意,如果您詢問的內容與物件不相符合或是廣告,經過審核,系統將會直接刪除您的發問內容
檢舉不實
永康華廈
│
永康電梯大廈
│
永康電梯大樓
│
永康大樓
│
永康大廈
│
永康電梯華廈
│
永康透天
│
永康透天厝
│
永康透天別墅
│
永康透天店面
│
永康大樓店面
│
永康公寓
│
永康店面
│
永康套房
│
永康辦公室
│
永康預售屋
│
永康豪宅
│
永康樓中樓
│
永康農舍
│
永康國宅
│
永康倉庫
│
永康辦公大樓
│
永康別墅
│
永康電梯別墅
│
永康廠房
│
永康廠辦
│
永康工業廠房
│
永康中古屋
│
永康新成屋
│
永康新房屋
│
永康新房子
│
永康成屋
│
永康建案
│
永康大樓建案
│
永康新建案
│
永康別墅建案
│
永康套房建案
│
永康透天建案
│
永康電梯透天
│
永康房地產
│
永康不動產
│
永康房屋仲介
│
永康房仲
│
●電話:07-7963288 ●電子信箱:
服務信箱
本網站保留一切權利,非經正式書面同意,禁止轉貼節錄。建議瀏覽解析度1024*768。
資料處理中,請稍後...
請注意:此案件已下架