台南市仁德廠房
首頁
│
台南房屋
│
台南房子
│
申請房仲網站
台南房屋出售
台南房屋出租
台南土地出售
台南土地出租
台南法拍屋
台南法拍地
台南房仲
台南房地產委託
關鍵字
現在位置:
首頁
>
台南房屋出售
>
仁德房屋出售
>
台南市仁德廠房-台南市仁德區太乙路
最後更新:39天前
檢舉不實
│
列印
│
物件留言
台南市仁德廠房
台南市仁德廠房
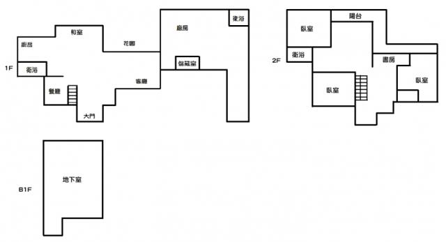
房屋資料
案名
太乙20米路甲工廠辦-地249坪
案號
2051
地址
台南市仁德區太乙路
台南市仁德區太乙路
最新交易狀態
帶看中
售價
售
8888萬
房屋類型
廠房_廠辦_工業住宅
總坪數
249.19 坪
格局
4房
,2廳,3衛,1陽台,1廚房
屋齡
36年
每坪單價
35.67萬/坪
公設比
車位
室內多車庫
座向
無障礙環境
沒有
法拍屋
本物件不是法拍屋
建物所在樓層
共2樓
管理費
管委會
沒有
中庭
沒有
電梯
沒有
是否為凶宅
不是
300公尺內嫌惡設施
面前道路
20米路
面寬
38米
縱深
21米
邊間
房屋銷售來源
不動產經紀人/專業仲介
房屋特色
近仁德-永康-臨20米路
1.稀有太乙甲工工業區廠辦住合一
2.近仁德交流道,車輛進出方便,南來北往便利
3.正20米路旁,大面寬約38米,深約21米
4.廠房方正,適中小企業
坪數說明
建物登記總坪數
160.89
土地登記總坪數
249.19
主建物坪數
停車位坪數
附屬建物坪數
公共設施坪數
增建坪數
周邊環境
生活機能
鄰近交通
鄰近地標
公園綠地
鄰近學區
捷運站
房屋聯絡人資訊
聯絡人姓名
陳盈秀
(煩請告知聯絡人,您是在889房屋網看到這則廣告,真摯感恩您的幫忙)
手機
0928-010-990(陳盈秀)
電子信箱
Skype通話
Line加入好友
所屬公司名稱
誠昱不動產企業社(住商成大東興店)
公司電話
0928010990 (LINE)
公司傳真
公司地址
台南市永康區小北路30號
網 址
http://www.台南秀秀房仲網.tw
贊助商廣告
台南市仁德廠房
台南仁德廠房-1
台南仁德廠房-2
台南仁德廠房-3
台南仁德廠房-4
台南仁德廠房-5
台南仁德廠房-6
台南仁德廠房-7
台南仁德廠房-8
台南仁德廠房-9
台南仁德廠房-10
台南仁德廠房-11
台南仁德廠房-12
台南仁德廠房-13
台南仁德廠房-14
台南仁德廠房-15
黃金熱銷物件
後壁後壁
廠房_廠辦_工業住宅 / 4房
2356 坪
售4200萬
安定海寮路
廠房_廠辦_工業住宅 / 4房
907 坪
售8100萬
安南科技一路
廠房_廠辦_工業住宅 / 4房
1725 坪
售4億4880萬
南區新義路
廠房_廠辦_工業住宅 / 4房
1633 坪
售4億9000萬
相似物件
柳營
廠房_廠辦_工業住宅/0房
533.5 坪
售9071萬
官田官田
廠房_廠辦_工業住宅/0房
560 坪
售8688萬
麻豆1
廠房_廠辦_工業住宅/0房
564.76 坪
售9000萬
安定近新吉工業區
廠房_廠辦_工業住宅/0房
905.12 坪
售8800萬
物件留言
請注意,如果您詢問的內容與物件不相符合或是廣告,經過審核,系統將會直接刪除您的發問內容
檢舉不實
仁德華廈
│
仁德電梯大廈
│
仁德電梯大樓
│
仁德大樓
│
仁德大廈
│
仁德電梯華廈
│
仁德透天
│
仁德透天厝
│
仁德透天別墅
│
仁德透天店面
│
仁德大樓店面
│
仁德公寓
│
仁德店面
│
仁德套房
│
仁德辦公室
│
仁德預售屋
│
仁德豪宅
│
仁德樓中樓
│
仁德農舍
│
仁德國宅
│
仁德倉庫
│
仁德辦公大樓
│
仁德別墅
│
仁德電梯別墅
│
仁德廠房
│
仁德廠辦
│
仁德工業廠房
│
仁德中古屋
│
仁德新成屋
│
仁德新房屋
│
仁德新房子
│
仁德成屋
│
仁德建案
│
仁德大樓建案
│
仁德新建案
│
仁德別墅建案
│
仁德套房建案
│
仁德透天建案
│
仁德電梯透天
│
仁德房地產
│
仁德不動產
│
仁德房屋仲介
│
仁德房仲
│
●電話:07-7963288 ●電子信箱:
服務信箱
本網站保留一切權利,非經正式書面同意,禁止轉貼節錄。建議瀏覽解析度1024*768。
資料處理中,請稍後...
請注意:此案件已下架