房屋資料
案名 A3佳里區番子寮朝南大地坪孝親房車墅 台南買屋專家 案號
地址 台南市佳里區番子寮
最新交易狀態帶看中售價
1558萬
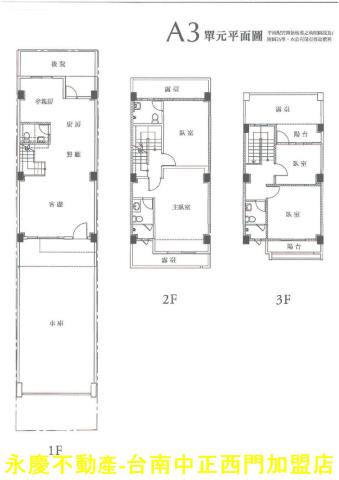
房屋類型 透天 總登記坪數 51.751 坪
格局5房,2廳,4衛屋齡2年
每坪單價30.11萬/坪公設比
車位室內車庫座向朝南
無障礙環境法拍屋 本物件不是法拍屋
建物所在樓層共3樓管理費
管委會中庭
電梯 沒有 是否為凶宅
300公尺內嫌惡設施 面前道路 6
面寬 縱深
邊間房屋銷售來源不動產經紀人/專業仲介
房屋特色

(1)基地地質改良樁加筏式基礎雙重抗震設計,再加全棟防水處理。



(2)前落地窗是5+5mm膠合玻璃隔音氣密再升級,保有家的寧靜。



(3)廚房採用櫻花廚具經典三機,衛浴為日系TOTO極簡衛浴。



(4)Kwikset四合一智慧電子鎖,指紋、密碼、一卡通皆能整合。



(5)近佳里市區,離塵不離城,生活機能優異,大地坪,好停車。

坪數說明
建物登記總坪數51.752土地登記總坪數49.716
主建物坪數48.197停車位坪數
附屬建物坪數3.554公共設施坪數
增建坪數
周邊環境
生活機能鄰近交通
鄰近地標公園綠地
鄰近學區延平國小,佳里國中捷運站
房屋聯絡人資訊
聯絡人姓名永慶不動產中正西門店
(煩請告知聯絡人,您是在889房屋網看到這則廣告,真摯感恩您的幫忙)
手機
0911-559351(永慶不動產中正西門店)
電子信箱
Skype通話 Line加入好友
所屬公司名稱永慶不動產中正西門加盟店
公司電話0911-559351 06-2212828公司傳真06-2215626
公司地址台南市中西區中正路45號
網 址http://永慶不動產-中正西門店.house-info.com.tw

贊助商廣告
佳里區透天
台南佳里透天-1
台南佳里透天-1
台南佳里透天-2
台南佳里透天-2
台南佳里透天-3
台南佳里透天-3
台南佳里透天-4
台南佳里透天-4
台南佳里透天-5
台南佳里透天-5
台南佳里透天-6
台南佳里透天-6
台南佳里透天-7
台南佳里透天-7
台南佳里透天-8
台南佳里透天-8
台南佳里透天-9
台南佳里透天-9
台南佳里透天-10
台南佳里透天-10
台南佳里透天-11
台南佳里透天-11
台南佳里透天-12
台南佳里透天-12
台南佳里透天-13
台南佳里透天-13
台南佳里透天-14
台南佳里透天-14
黃金熱銷物件
相似物件

物件留言
請注意,如果您詢問的內容與物件不相符合或是廣告,經過審核,系統將會直接刪除您的發問內容
等待圖示
檢舉不實
等待圖示
●電話:07-7963288  ●電子信箱:服務信箱

本網站保留一切權利,非經正式書面同意,禁止轉貼節錄。建議瀏覽解析度1024*768。